12 Kayak Trail, Norton, MA 02766
- 3 beds |
- 2 baths |
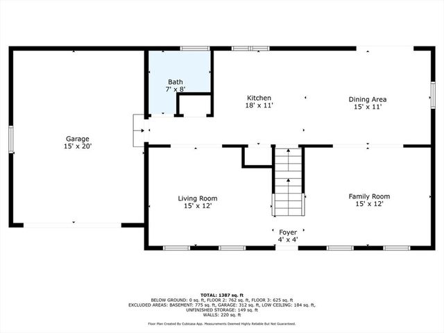
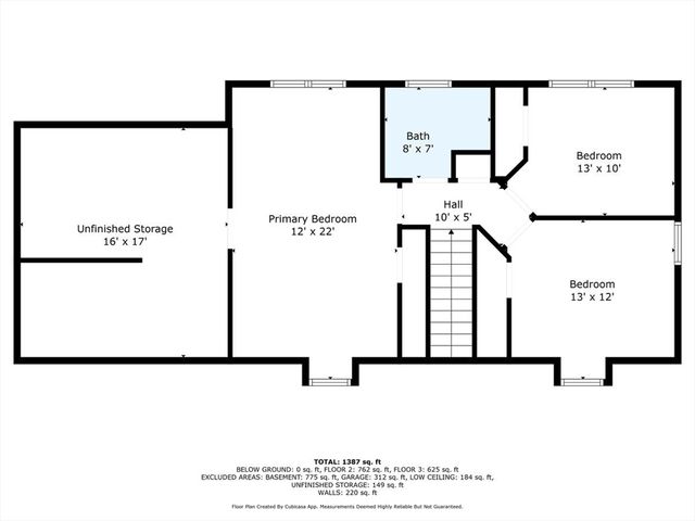
- 1,428 sqft
Single-Family Home
Built in 2007
0.47acre lot
1 car garage
$202/sqft
Listed 3 months ago
Property Description
Located in a cul-de-sac neighborhood in sought-after Arrowhead Village is this spacious, affordable 3 Bedroom/1.5 bath Cape with 1-car attached garage. Direct access to the Norton Rail Trail right at the neighborhood entrance. This home is full of opportunity and possibilities. Low HOA fee covers community septic, common area plowing, landscaping, and road maintenance. This property is an Affordable Resale subject to 40B Guidelines & Deed Rider restrictions. Must be owner occupied. Income restrictions as follows: 1 person $70,350, 2 person $80,400, 3 person $90,450, 4 person $100,500. Household Asset limit: $75,000. Deadline to Qualify for Lottery: September 16th at 5pm.
- Listing Status:
- Pending
- Date Added:
- September 2, 2025 at 05:00AM
- Listing Office:
- The Simply Sold Realty Co. : 508-807-5394
- Listing Agent:
- Ashley Trapp : 508-930-0687
- MLS ID:
- 73424694

- Appliances: Gas Water HeaterRangeDishwasherMicrowaveRefrigeratorWasherDryer
- Laundry: Electric Dryer HookupWasher Hookup
- Basement: FullInterior EntryBulkhead
- Flooring: TileCarpet
- A/C: None
- Heating: Forced AirNatural Gas
- Fireplace: Fireplaces: 0
- General: Deck
- Style: Cape
- Parking: AttachedPaved DriveOff StreetPaved
- Roofing: Shingle
- General: FrameConcrete Perimeter
- Road/Access: Public
- HOA Amenities: 140.0
- Originating MLS: MLS Property Information Network
- County: Bristol
- Zoning: R60M:10 P:6304658941
- Utilities: for Electric Rangefor Electric DryerWasher Hookup150 Amp Service
- Water: Public
- Sewer: Private Sewer
- Source: MLS Property Information Network
This listing courtesy of Ashley Trapp, The Simply Sold Realty Co.
Monthly Payment
- Principal & Interest $
- Property Taxes $
- Home Insurance $
- VA Funding Fee $
Location
Schools Nearby
L.G Nourse Elementary School
38 Plain St, Norton, MA, 02766
Grades KG-3
1.00 miles away
Norton Middle School
215 W Main St, Norton, MA, 02766
Grades 6-8
2.66 miles away
Norton High School
66 W Main St, Norton, MA, 02766
Grades 9-12
1.95 miles away


