Lot 6 Sperry Lane, North Attleboro, MA 02760
- 4 beds |
- 3 baths |
- 3,130 sqft
Single-Family Home
Built in 2026
0.64acre lot
2 car garage
$371/sqft
Listed 8 days ago
Property Description
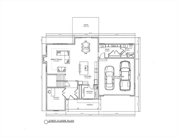
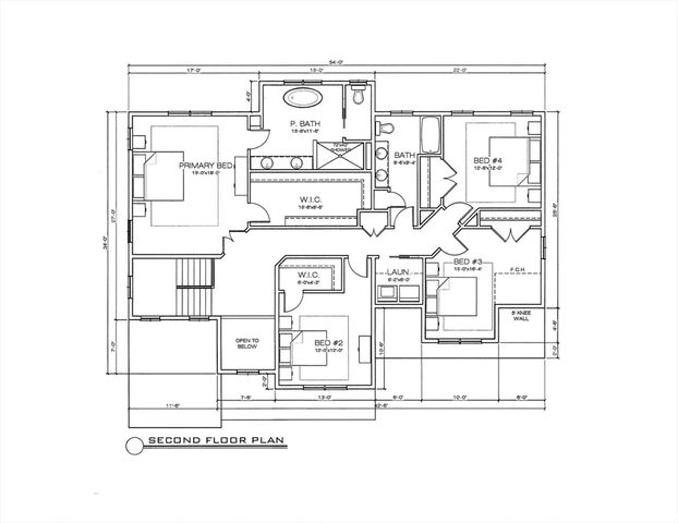
UNDER CONSTRUCTION! New home in Jackson Farm on wooded lot! Custom designed home w/Open floor plan and basement w/9' ceilings. Layout features a vaulted open foyer that leads to a grand open kitchen, dining & family room. Kitchen features an 8' center island w/breakfast bar, a huge 8x10 pantry, stainless appliances including GAS cooktop, Wall oven & microwave, dishwasher & exterior vented hood, hardwood floors, large dining area w/slider to composite deck & open the large family room w/gas fireplace. Private office/Flex room, 1st floor full bath & mudroom w/ built-in storage & double closet. 2nd floor has primary bedroom suite w/ bathroom that includes tile shower, soaking tub & double vanity. 3 additional good-sized bedrooms, Main bath w/double vanity & laundry. Features include: a dropped foundation w 3 windows & 9' Ceiling, central AC, town water & sewer, hardwood floors, black metal roof above porch & more! Located in great neighborhood convenient to highways & commuter rail.
- Listing Status:
- Active
- Date Added:
- December 6, 2025 at 06:00AM
- Listing Office:
- RE/MAX Real Estate Center : 508-543-3922
- Listing Agent:
- Campos Homes : 508-594-3223
- MLS ID:
- 73460385

- General: PorchDeck - CompositeRain GuttersProfessional LandscapingScreens
- Style: Colonial
- Parking: AttachedGarage Door OpenerPaved DriveOff StreetPaved
- Roofing: ShingleMetal
- Windows: Insulated WindowsScreens
- General: FrameConcrete Perimeter
- Road/Access: Public
- Originating MLS: MLS Property Information Network
- County: Bristol
- Zoning: res
- Utilities: for Gas Rangefor Gas Ovenfor Electric DryerWasher HookupIcemaker Connection110 VoltsCircuit Breakers200+ Amp Service
- Water: Public
- Sewer: Public Sewer
- Source: MLS Property Information Network
This listing courtesy of Campos Homes, RE/MAX Real Estate Center
Monthly Payment
- Principal & Interest $
- Property Taxes $
- Home Insurance $
- VA Funding Fee $
Location
Schools Nearby
Falls Elementary School
2 Jackson St, Attleboro Falls, MA, 02763
Grades KG-5
1.17 miles away
North Attleboro Middle School
564 Landry Ave, North Attleboro, MA, 02760
Grades 6-8
1.22 miles away
North Attleboro High School
1 Wilson Whitty Way, North Attleboro, MA, 02760
Grades 9-12
1.16 miles away






