12 Chelmsford St, Boston, MA 02122
- 6 beds |
- 2 baths |
- 3,725 sqft
Multi-Family Home
Built in 1905
4,356sqft lot
—— car garage
$322/sqft
Listed 9 days ago
Property Description
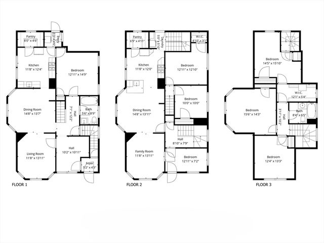
Sun OH Cancelled! This is a classic Philly-style multi-family in the heart of Dorchester’s Adams Village/Neponset neighborhood, one of the few remaining. This thoughtfully maintained and updated property offers two levels for each unit in the classic Philly style with modern updates to kitchens and baths. Rare opportunity for investors or owner-occupants seeking both space and convenience. Unit 1 features 3 Bed, with open floor plan from Kitchen to Dining to Living room, spacious and light filled. Second floor offers 3 Bedrooms plus a bonus office or nursery, the lower-level flows with open concept kitchen to living space, and upstairs lays out three generous sized bedrooms with a primary that features a built-out walk-in closet. Both units are tenanted at will, with flexibility for extension. In-Unit Washer and Dryer for each unit, off street parking tandem for up to 3 cars. Location is spectacular, walking distance to all the shops and restaurants, easy access to I-93.
- Listing Status:
- Pending
- Date Added:
- March 26, 2026
- Data Last Updated:
- April 4, 2026 at 3:08PM
- Listing Office:
- BA Property & Lifestyle Advisors : 508-852-4227
- Listing Agent:
- Le Cao : 508-649-3880
- MLS ID:
- 73492329

- A/C: Central Air
- Heating: BaseboardOilForced Air
- Fireplace: Fireplaces: 0
- Parking: Paved DriveParking spaces: 3
- General: 4Stone
- Originating MLS: MLS Property Information Network
- County: Suffolk
- Zoning: R2W:16 P:03707 S:0001314964
- Water: Public
- Sewer: Public Sewer
- Source: MLS Property Information Network
This listing courtesy of Le Cao , BA Property & Lifestyle Advisors
Monthly Payment
- Principal & Interest $
- Property Taxes $
- Home Insurance $
- VA Funding Fee $
Location
Schools Nearby
Thomas J. Kenny Elementary School
19 Oakton Ave, Dorchester, MA, 02122
Grades PK-5
0.12 miles away
Richard J. Murphy K-8 School
1 Worrell St, Dorchester, MA, 02122
Grades PK-8
0.69 miles away
Dr. William Henderson Upper School
18 Croftland Ave, Dorchester Center, MA, 02124
Grades 5-12
0.82 miles away



